Ūdensnoteku sistēma Ø 125/100 mm un Ø 150/120 mm
1. Teknes gals
2. Tekne
3. Teknes ārējais stūris
4. Tekņu savienotājs
5. Teknes āķis
6. Konektors
7. Teknes iekšējais stūris
8. Līkums
9. Notekcaurule
10. Notekcaurules stiprinājums
11. Lejasgals
Ūdensnoteku sistēmas sastāvdaļas
1. Teknes gals
2. Tekne
3. Tekņu savienotājs
4. Teknes stūris, iekšējais
5. Teknes stūris, ārējais
6. Teknes āķis, garais
7. Teknes āķis, īsais
8. Teknes āķis, garais, ar klemmeru
9. Teknes āķis, īsais, ar klemmeru
10. Teknes āķis, īsais, regulējams
11. Caurule
12. Piltuve
13. Konektors
14. Caurules stiprinājums
15. Līkums
16. Lejasgals
17. Caurule ar līkumu
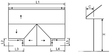
Ūdensnoteku sistēmas pasūtīšana
Pasūtot ūdensnoteku sistēmu, ir nepieciešama šāda informācija:
• jumta skice ar izmēriem
• jumta malu garumi (L)
• augstums no zemes līdz karnīzs apakšai (H)
• paspārnes platums (C)
Ūdensnoteku sistēmas diametrs un izvietojums ir atkarīgs no jumta un mājas laukuma un konfigurācijas
Pieredze rāda, ka 1 m2 lielam jumta laukuma ir nepieciešams 1 cm2 liels notekas šķērsgriezums. Mūsu ražotās ūdensnoteku sistēmas šķērsgriezums ir 66 cm2 – 125/100 mm sistēmai un 100 cm2 – 150/120 mm sistēmai. Maksimālajam attālumam starp notekcaurulēm nevajadzētu būt lielākam par 10 metriem, jo, līstot stipram lietum, notekcaurules nespēs novadīt visu ūdens daudzumu. Jo nelielāki ir attālumi starp notekcaurulēm, jo mazāka ir iespēja ziemā ūdenim teknē sasalt, kā arī rudenī teknē sakrāties lapām un gružiem.
Nepieciešamie instrumenti un papildmateriāli
Ūdensnoteku sistēmas kvalitatīvai montāžai ir nepieciešams elektriskais ripzāģis vai skārda šķēres, urbjmašīna, silikons un skrūves.
Ūdensnoteku sistēmas skrāpējumus, kas radušies transportēšanas vai montāžas laikā, ir jāaizkrāso ar atbilstošu krāsu.
Materiālu griešanai nekādā gadījumā neizmantojiet abrazīvo disku!
Teknes āķu montāža
Āķu montāžu iesāk tajā karnīzes gala, kura ir paredzēts slīpums uz notekcauruli. Pirmo un pēdējo āķi stiprina
apmēram 150 mm no karnīzes gala.
Pirmo āķi uzstāda tā, lai attālums starp jumta plaknes iedomāto turpinājumu un teknes ārmalu būtu vismaz 25 mm. Ieteikums ir vienu no skrūvēm nepieskrūvēt līdz galam, jo pie tās pagaidām varēs piesiet līmeņošanas auklu.
Nākamo āķi pie karnīzes dēļa otra gala piestiprina atbilstoši nepieciešamajam teknes slīpumam. Ieteicamais teknes slīpums ir apmēram 2-3 mm uz vienu teknes metru. Arī šim āķim vienu no skrūvēm nepieskrūvē līdz galam un pie tās piestiprina līmeņošanas auklas otru galu.
Attālumam starp teknes āķiem ir jābūt ne lielākam kā 900 mm. Pārējos āķus, atbilstoši līmeņošanas auklai, piestiprina pie karnīzes dēļa. Beigās jāpieskrūvē līdz galam neieskrūvētās skrūves, pie kurām bija piesieta stiprinājuma aukla.
Teknes konektora montāža
1. Uz teknes atzīmē notekcaurules pievienošanas vietu un ar skārda šķērēm izgriež teknē caurumu.
2. Konektora priekšējo malu aizāķē aiz teknes priekšpuses un pagriežot novieto to paredzētajā.
vietā.
3. Noloka konektora aizmugurējā daļā esošos atlokus aiz teknes.
Teknes galu montāža
1. Iesākumā savienojuma vietu noblīvē ar silikonu, pēc tam tekni ar teknes galu savieno paredzētajās rievās.
2. Teknes gala atloku, kas saskaras ar sienu, var ar roku nolocīt tā, lai tas piekļautos teknes malai.
Teknes montāža
Pirms teknes montāžas ir vēlams vispirms savienot visas teknes sastāvdaļas (teknes galus, konektorus un teknes stūrus).
3. Ievieto teknes aizmugurējo malu teknes āķī un pēc tam iespiež āķī teknes priekšējo malu.
4. Teknes jāievieto āķos pēc iespējas precīzāk. Teknes pārvietot gareniski pēc to montāžas nav ieteicams, jo tā var saskrāpēt krāsojumu.
Tekņu savienošana
1. Lai teknes savienotu, tās novieto vienu pretim otrai un vienu no teknēm apgriež otrādi.
2. Tekni ievieto otras teknes šuvē un augšējo tekni griež tā, lai abas teknes iegultos viena otrā. Tekņu savienojuma vietu blīvē ar silikonu un tai ir jābūt vismaz 10 mm.
3. Tekņu savienotāja blīvējošajā gumijā vispirms iesmērē silikonu, pēc tam pievieno savienotāju pie teknes aizmugurējās malas. Savienotāju nofiksē, sākot no teknes aizmugurējās malas līdz teknes priekšpusei, stingri gar teknes apakšu. Ir jāpārliecinās, ka savienotājs atrodas precīzi abu tekņu savienojuma vietā.
4. Tekņu savienotāju aizāķē aiz teknes priekšējās malas.
5. Tekņu savienotāju nofiksē, piespiežot to pie teknes, un nolokot tam paredzēto atloku.
Tekņu stūru montāža
1. Teknes āķus pieskrūvē kā aprakstīts iepriekš (skat. teknes āķu montāžu), saglabājot nepieciešamo teknes slīpumu.
2. Tekni ar teknes stūri savieno kā aprakstīts par tekņu savienošanu.
Notekcauruļu montāža
1. Notekcauruļu līkumus ir viegli savienot ar notekcaurulēm, jo notekcaurules viens gals ir sašaurināts, lai varētu savienot vienu elementu ar otru. Notekcaurules iespējams saīsināt ar elektrisko ripzāģi caurules nesašaurinātajā galā.
2. Notekcaurulēm ir jāatrodas 30 – 40 mm no sienas. Tas jāņem vēra, veicot slīpo notekcauruļu montāžu.
3. Notekcaurules lejas galam ir jāatrodas vismaz 300mm virs zemes. Tas jāņem vērā nogriežot vertikālo notekcaurules gabalu.
Notekcauruļu stiprinājumiem pie sienas ir jāatrodas uz cauruļu un līkumu vai cauruļu un cauruļu savienojumu vietām.
Katrai notekcaurulei ir nepieciešami vismaz 2 stiprinājumi.
Notekcaurules stiprinājuma montāžai pie mūra sienas izmanto Ø 8 mm skrūves.
Caurules ar līkumiem parasti vispirms savieno uz zemes, pēc tam stiprina pie teknes konektora un ar notekcauruļu stiprinājumiem – pie sienas.
4. Caurules ievieto notekcauruļu stiprinājumos un stiprinājumus nofiksē ar 2 skrūvēm ar uzgriežņiem.
Notekcaurules apakšējam stiprinājumam ir jāatrodas caurules un līkuma stiprinājuma vietā. Ja tas nav iespējams, tad notekcaurules un līkuma sastiprināšanai izmanto kniedes vai skrūves.
Kopšana
Lai ūdensnoteku sistēma kalpotu pēc iespējas ilgāk, tā ir regulāri jāpārbauda un jākopj.
Ūdensnoteku sistēma ir jāpārbauda ne retāk kā reizi gadā (ieteicams pavasarī), jo lietus ūdens ne vienmēr pilnībā aizskalo teknēs un notekcaurulēs sakrājušās koku lapas, skujas un citus netīrumus. Ūdensnoteku sistēmu tīrot ir jāievēro piesardzība, lai nesaskrāpētu materiāla pārklājumu.
Ūdensnoteku sistēmu var mazgāt ar ūdeni un mīkstu birsti. Mazgājot ar ūdens strūklu, maksimālais spiediens nedrīkst pārsniegt 50 bārus. Mazgāšanai var izmantot arī krāsotu virsmu mazgāšanai paredzētu līdzekli, ļaujot tam pāris minūtes iedarboties un pēc tam rūpīgi noskalojot ar lielu tīra ūdens daudzumu.
























